为盘活国有资产,实现保值增值。根据国有资产管理有关规定和要求,拟对烟台海上世界规划展示中心实现公开招租,现就有关本次招租的具体事项公告如下:
一、招租资产基本情况
1、项目地点:芝罘区烟台港集团一突堤东南角,土地四至:西至规划道路,南至规划道路,东至规划道路,北至规划道路。
2、项目概况:烟台海上世界规划展示中心占地面积约12616平方米,建筑面积约4182平方米,地上局部二层;最高高度13.5米,最大跨度19.35米;结构类型为框架结构。
二、招租范围
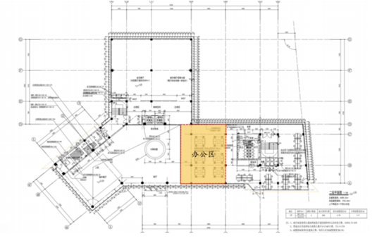
租赁区域(不含公摊区域)位置如下图:
展厅一层租赁区域

展厅二层租赁区域
三、招租方式
公开招租。
四、招租对象
意向承租人须为海上世界片区项目的投资单位。
五、租赁要求
1、承租人可对室外租赁的景观区域进行改造提升,租赁期结束后需无偿恢复原状。
2、整个展厅及室外区域使用同一物业管理公司——招商财金物业,物业服务费全部由承租方承担。
3、水电等费用承租方根据租赁面积据实结算。
4、租赁期内出租人需保证承租人的独家、排他权利。
5、承租人对室内外的布局改造方案须经出租人同意,且室内布局方案须不影响日常各级观摩活动的开展。
六、报名方式
凡有意参加招租的单位或个人,须在我公司办理有关报名手续后,方可参加招租活动。单位凭营业执照、法人证明或法人委托书、公章办理;个人凭身份证办理招租报名手续。
七、报名时间
公告之日起至2021年2月7日下午17:00。
八、报名地点
烟台市莱山区迎春大街170号金贸中心15楼,烟台市财金发展投资集团有限公司。
九、联系人
林高峰 电话:13385458896
烟台市财金发展投资集团有限公司
2021年2月3日


0535-6887256
YTCJ_zhb@ytcjjt.cn
烟台市莱山区科技大道59号 烟台财金大厦 16-23F